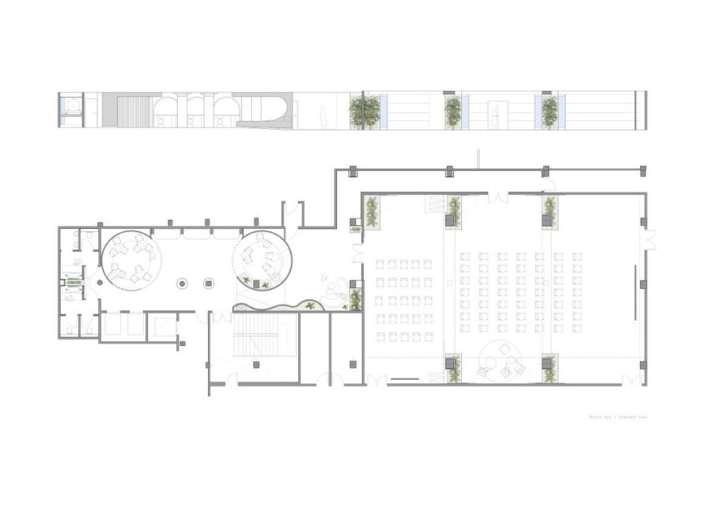
Hotel Vincci Marítimo: Sala Brunch – Sala Eventos – Baños – Proyecto contract

Redefinir una planta baja oscura como si fuera un espacio abierto al exterior ha sido el eje
del proyecto de Rosa Colet, que transforma los salones y el área de brunch del hotel Vincci Marítimo en Barcelona con espejos, lucernarios y formas curvas. Una intervención que no solo optimiza la funcionalidad, sino que seduce con luz, amplitud y continuidad estética.